Rollläden - Easy-Roll Box

Manuelles Modul für Poly-Metallic Matten (vertikaler Lauf)

Die Easy-Roll Box ist extra für die Rollladenmatte Poly-Metallic konzipiert worden. Als Mechanik ist hier der platzsparende Roll-Lift verarbeitet, der einen aktiven Gewichtsausgleich des Rollladens in nahezu jeder Öffnungsposition sicherstellt. Wie alle OSTERMANN-Boxen ist auch die Easy-Roll Box mit nur wenigen Handgriffen eingebaut. Das System ist für einen nachträglichen Einbau geeignet.

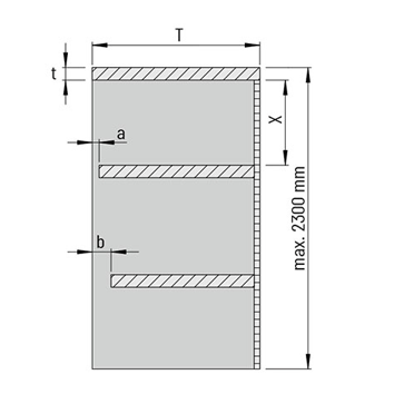
Planungshinweise

T:min. 267 mm
a:min. 5 mm
b:min. 15 mm (bei Schlössern ggf. mehr)
X:H: 300-1600mm = 173 mm / H: 1601-2300mm = 224 mm
t:19 mm (Seitenstärke)
Breite (Außenkorpusmaß):min. 400 mm / max. 1200 mm
Höhe (Außenkorpusmaß):max. 2300 mm

Montagehinweise

In nur 6 einfachen Schritten eingebaut. Ohne fräsen.

Montage - so einfach geht’s:

  1. Führungsprofile rechts und links auf den Korpus aufschrauben
  2. Unterprofil oben auf den Korpus aufschrauben
  3. Box bis zum Anschlag einschieben und verschrauben
  4. Abdeckprofile auf die Kunststoff Führungsprofile aufdrücken
  5. Lisene auf das Unterprofil aufclipsen
  6. Abdeckkappen oben und unten auf die Abdeckprofile setzen

Inhalt:

  1. 1 x Box mit eingesetztem Rollladen
  2. 1 x Unterprofil Lisene (Kunststoff)
  3. 1 x Lisene (Aluminium)
  4. 1 x Paar Führungsprofile (Kunststoff)
  5. 1 x Paar Abdeckprofile (Aluminium)
  6. 2 x Abdeckkappen oben (Kunststoff)
  7. 2 x Abdeckkappen unten (Kunststoff)
Sprache
IT
© 2025 Rudolf Ostermann GmbH